
Stijlvol 4-laags 1,5 herenhuis van 332 m2. De geliefde Jugendstil-stijl van begin jaren 1900 komt bij dit herenhuis goed tot zijn recht. De mooie Jugendstil kenmerken zijn gelukkig bewaard gebleven waaronder de hoge rijke ornamenten plafonds, de mooie suite separaties en natuurstenen schouwen, de eiken parketvloeren en het vele glas-in-lood.
Schitterende woonkamer en-suite en open grote moderne keuken, gezellige stadstuin, kelder, 9 slaap/werkkamers, 2 badkamers en een pantry zijn verspreid over 4 lagen.
Dit bijzondere herenhuis uit 1902 ligt op eigen grond op een mooie centrale locatie in Duinoord en is te herkennen aan de mooie voorgevel met het houten balkonnetje met afdakje.
ENGLISH? SEE BELOW.
Locatie
De Groot Hertoginnelaan staat bekend als een statige laan in Duinoord die gelegen is op loopafstand van de Reinkenstraat en de Frederik Hendriklaan met een verscheidenheid aan winkels, lunchrooms en restaurants. Vele middelbare- en basisscholen zijn dichtbij waaronder ook diverse internationale…
Stijlvol 4-laags 1,5 herenhuis van 332 m2. De geliefde Jugendstil-stijl van begin jaren 1900 komt bij dit herenhuis goed tot zijn recht. De mooie Jugendstil kenmerken zijn gelukkig bewaard gebleven waaronder de hoge rijke ornamenten plafonds, de mooie suite separaties en natuurstenen schouwen, de eiken parketvloeren en het vele glas-in-lood.
Schitterende woonkamer en-suite en open grote moderne keuken, gezellige stadstuin, kelder, 9 slaap/werkkamers, 2 badkamers en een pantry zijn verspreid over 4 lagen.
Dit bijzondere herenhuis uit 1902 ligt op eigen grond op een mooie centrale locatie in Duinoord en is te herkennen aan de mooie voorgevel met het houten balkonnetje met afdakje.
ENGLISH? SEE BELOW.
Locatie
De Groot Hertoginnelaan staat bekend als een statige laan in Duinoord die gelegen is op loopafstand van de Reinkenstraat en de Frederik Hendriklaan met een verscheidenheid aan winkels, lunchrooms en restaurants. Vele middelbare- en basisscholen zijn dichtbij waaronder ook diverse internationale scholen en bedrijven. De fiets of het openbaar vervoer brengt je snel naar het strand, de stad en het station.
Wat je graag wil weten over dit statige herenhuis:
– Woonoppervlakte 332 m² volgens de branchebrede meetinstructie (afgeleid van de NEN
2580 methode)
– Veel authentieke details
– Hoge rijke ornamenten plafonds
– De woning is grotendeels intern gerenoveerd in 2014
– Het dak is volledig vernieuwd en ook geïsoleerd (2025)
– De zinken goten en het balkonnetje op de 3e etage volledig vernieuwd in 2014
– Gas-, elektra- en waterleidingen zijn allemaal vernieuwd in 2014
– Energielabel C
– Bouwjaar 1902
– Begane grondvloer is geïsoleerd
– Elektra 16 groepen en 3 aardlekschakelaars
– Cv HR combi ketel, merk Remeha Calenta jaar 2014
– Houten kozijnen met gedeeltelijk dubbel glas
– Intercom op elke verdieping aanwezig
– Bouwtechnisch rapport aanwezig
– Rijks beschermd stadsgezicht Duinoord
– Eigen grond
– Kijk ook naar onze omgevingsfilm
– Verkoopvoorwaarden zijn van toepassing
– De op te maken koopovereenkomst zal conform het NVM-model zijn
– In de koopakte zullen in verband met het bouwjaar de ouderdoms- en
materialenclausule worden opgenomen
Indeling
Begane grond
Hal met oorspronkelijke marmeren vloer en fraaie glas-in-lood tochtseparatie. Vervolgens kom je in een brede gang met marmeren vloerplaten.
Je komt binnen in een prachtige kamer en-suite met een separatie met glas-in-looddeuren, prachtige geornamenteerde plafonds, 2 natuurstenen schouwen en een zeer mooi eiken parketvloer met visgraat/Versailles motief.
Zowel vanuit de woonkamer als de gang kom je in de moderne lichte keuken. Deze keuken is voorzien van een natuurstenen aanrechtblad met een 5-pits gaskookplaat en een geïntegreerde afzuigkap, een vaatwasser, koel/vriescombi, een oven en een magnetron.
Heerlijke goed aangelegde stadstuin.
Heel fijn is de extra kamer aan de voorzijde met vaste kast.
Modern betegeld toilet met fontein.
Grote Kelder met oorspronkelijke houten bergkast en de opstelplaats van de cv ketel.
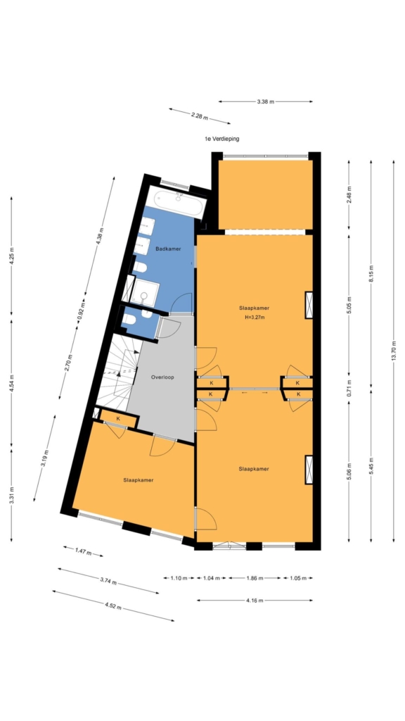
1e etage
Overloop met modern royaal toilet met fontein en authentieke betegeling.
Schitterende kamer en-suite met prachtige, rijk bewerkte eiken parketvloer en prachtig geornamenteerde plafonds. De voorkamer met natuurstenen schouw heeft een balkonnetje. De zeer grote klassieke (Art Deco) achterkamer met serre bevat een mooie houten lambrisering en heeft ook direct toegang tot de badkamer.
Aan de achterzijde is een moderne lichte badkamer voorzien van een ligbad, douche met stortdouche, bidet, 2 wastafels en een handdoekenradiator en mechanische ventilatie.
Aan de voorzijde een extra grote brede zijkamer met vaste kast.
2e etage
Royale overloop met modern betegeld toilet met fontein.
Royale sfeervolle kamer en-suite met wederom het vrije uitzicht over de Groot Hertoginnelaan. Achterkamer heeft een natuurstenen schouw en toegang tot een groot terras met mooie vlonders. Vanuit de achterkamer kom je in een keuken met een vaste kast.
Moderne 2e badkamer met douche, wastafel, handdoekenradiator en aansluitingen voor de wasmachine en de droger.
Brede kamer met vaste kast aan de voorzijde.
3e etage
Royale overloop met extra lichtval door het daklicht.
Heel bijzonder is de zeer royale kamer aan de voorzijde met bergkasten. Deze zolderkamer is recent gerenoveerd en geïsoleerd en loopt over de volledige breedte van het herenhuis. Riante L-vormige zolderkamer aan de achterzijde met toegang tot een balkon.
Interesse in deze woning? Schakel direct uw eigen NVM-aankoopmakelaar in. Uw NVM-aankoopmakelaar komt op voor uw belang en bespaart u tijd, geld en zorgen.
Adressen van collega NVM-aankoopmakelaars in Haaglanden vindt u op Funda.
Kadastrale omschrijving:
Gemeente ‘s-Gravenhage, sectie N, nummer 8825
Oplevering In overleg
Stylish four-storey 1.5 townhouse of 332 m2. The popular Neo-Renaissance style of the early 1900s comes into its own in this townhouse. Fortunately, the beautiful Art Nouveau features have been preserved, including the high, richly ornamented ceilings, the beautiful partition doors, natural stone fireplaces, the oak parquet floors and the many stained-glass windows.
Splendid, partitioned living room and large, modern open kitchen, charming city garden, cellar, nine bedrooms/studies, two bathrooms and a pantry are spread over four floors.
This exceptional townhouse from 1902 is located on a freehold plot in a beautiful central location in Duinoord and can be recognised by the beautiful front facade with the wooden balcony with a lean-to.
Location
The Groot Hertoginnelaan is known as a stately avenue in Duinoord, located within walking distance of Reinkenstraat and Frederik Hendriklaan with a variety of shops, lunchrooms and restaurants. Many secondary and primary schools are nearby, including various international schools and companies. You can quickly get to the beach, the city and the station by bike or public transport.
What you definitely want to know about this stately townhouse:
– Living area of 332 m² in accordance with the branch measurement standard (derived from the NEN
2580 method)
– Many authentic details
– High, richly ornamented ceilings
– The property was mostly internally renovated in 2014
– The roof has been completely renewed and also insulated in 2025
– The zinc gutters and the small balcony on the third floor have been completely renewed in 2014
– Gas, electricity, and water pipes were all renewed in 2014
– Energy label C
– Construction year 1902
– Ground floor is insulated
– Electricity: 16 groups and 3 earth leakage circuit breakers
– Central-heating boiler, brand Remeha Calenta, year 2014
– Wooden window frames with partial double glazing
– Intercom on every floor
– Building inspection report available
– State-protected cityscape of Duinoord
– Freehold plot
– Also see our film about the area
– Terms and conditions of sale apply
– The sales contract will be drawn up in accordance with the NVM model
– Due to the construction year, the age and
materials clause will be included in the deed of sale
Layout
Ground floor
Hall with original marble floor and beautiful stained-glass connecting door. You then enter a wide hallway with marble floor slabs.
You enter a beautiful open-plan room, with stained-glass partition doors, lovely ornamental ceilings, two natural stone fireplaces and a very beautiful oak parquet floor with herringbone/Versailles pattern.
Both the living room and the hallway lead to the bright modern kitchen. This kitchen is equipped with a natural stone worktop with a five-burner gas hob and an integrated extractor hood, a dishwasher, fridge-freezer, an oven and a microwave.
Lovely nicely landscaped city garden.
The extra room at the front with a built-in cupboard is a nice addition.
Modern tiled toilet with hand basin.
Large cellar with original wooden storage cupboard and the location of the central-heating boiler.
1st floor
Landing with modern spacious toilet with hand basin and authentic tiling.
Superb partitioned room with beautiful, richly decorated oak parquet floor and beautiful ornamented ceilings. The front room has a stone fireplace and a small balcony. The very large classic (Art Deco) back room with conservatory contains beautiful wooden panelling and has direct access to the bathroom.
At the rear there is a bright modern bathroom with a bath, shower with rain shower, bidet, two hand basins and a towel radiator and mechanical ventilation.
At the front, there is an extra-large, wide side room with built-in cupboard.
2nd floor
Spacious landing with modern tiled toilet with hand basin.
Spacious and attractive partitioned room with an unobstructed view over the Groot Hertoginnelaan. The back room has a stone fireplace and access to a large terrace with beautiful decking. From the back room, you enter a kitchen with a built-in cupboard.
Second modern bathroom with shower, hand basin, towel radiator and connections for the washing machine and dryer.
Wide room at the front with a built-in cupboard.
3rd floor
Spacious landing with extra natural light through the skylight.
The very spacious room at the front with storage cupboards is a splendid feature. This attic room was recently renovated and insulated and runs over the entire width of the townhouse. Spacious L-shaped attic at the rear with access to a balcony.
Interested in this property? Please contact your NVM estate agent. Your NVM estate agent acts in your interest and saves you time, money and worries.
Addresses of fellow NVM purchasing agents in Haaglanden can be found on Funda.
Cadastral description:
Municipality of The Hague, section N, number 8825
Transfer in consultation
Deel deze woning
Afbeeldingen en video
Kenmerken
- Status Beschikbaar
- Vraagprijs € 1.195.000, - k.k.
- Soort woonhuis Woonhuis
- Woonoppervlakte 332 m2
- Totaal aantal kamers 11
- Aantal slaapkamers 8
- Aantal badkamers 2
- Badkamervoorzieningen Ligbad, douche, bidet, dubbele wastafel, douche, wastafel
- Inhoud 1.294 m3
- Oppervlakte gebouwgebonden buitenruimte 14 m2
- Plot area 143 m2
- Perceel 8.825 m2
- Bouwvorm Bestaande bouw
- Dak type Samengesteld dak
- Woonlagen 5
- Eigendoms soort Volle eigendom
- Huidige bestemming Woonruimte
- Huidig gebruik Woonruimte
- Bijzonderheden Beschermd stads of dorpsgezicht
- Bouwjaar 1902
- Energielabel C
- Ligging In woonwijk, vrij uitzicht
- Kwaliteit woning Goed
- Aangeboden sinds 13-03-2025
- Aanvaarding In overleg
- Tuin locatie Noordwest
- Tuin oppervlakte 37 m2
- Tuin type Achtertuin
- Tuin oppervlakte 37 m2
- Tuin type Achtertuin
- Kwaliteit tuin Verzorgd
- Isolatievormen Vloerisolatie, gedeeltelijk dubbel glas
- Combiketel Ja
- Ketel bouwjaar 2014
- Ketel brandstof Gas
- Ketel eigendom Eigendom
- Heating types Cv ketel
- Warmwater soorten Cv ketel
- Garage soort Geen garage
- Parkeer faciliteiten Openbaar parkeren, betaald parkeren
Plattegronden
In de buurt
Filter resultaten
Bezichtiging plannen
Vul het formulier in om een bezichtiging te plannen.
"*" geeft vereiste velden aan
