
Stap binnen in deze sfeervolle jaren ’30 woning vol karakter en authentieke details.
De glas-in-loodramen, houten vloeren en en-suite deuren geven het huis een unieke uitstraling. Met drie slaapkamers, een ruime en lichte woonkamer en een zonnige tuin is er volop leefruimte.
De woning is met zorg onderhouden en combineert klassieke charme met modern comfort. Originele elementen zijn prachtig bewaard gebleven en zorgen voor een warm thuisgevoel.
Een ideale woning voor wie stijlvol wil wonen met volop ruimte en sfeer.
Laat je verrassen tijdens een bezichtiging – deze woning is absoluut het zien waard!
ENGLISH? SEE BELOW.
Uitstekende locatie met internationale allure
Benoordenhout staat bekend om zijn rustige, groene karakter én zijn centrale ligging. Op steenworp afstand vind je het prachtige Landgoed Clingendael, Park Oostduin-Arendsdorp, en de gezellige Van Hoytemastraat met winkels, terrassen en restaurants. De straat heeft een heerlijk rustig karakter.
Op fietsafstand ben…
Stap binnen in deze sfeervolle jaren ’30 woning vol karakter en authentieke details.
De glas-in-loodramen, houten vloeren en en-suite deuren geven het huis een unieke uitstraling. Met drie slaapkamers, een ruime en lichte woonkamer en een zonnige tuin is er volop leefruimte.
De woning is met zorg onderhouden en combineert klassieke charme met modern comfort. Originele elementen zijn prachtig bewaard gebleven en zorgen voor een warm thuisgevoel.
Een ideale woning voor wie stijlvol wil wonen met volop ruimte en sfeer.
Laat je verrassen tijdens een bezichtiging – deze woning is absoluut het zien waard!
ENGLISH? SEE BELOW.
Uitstekende locatie met internationale allure
Benoordenhout staat bekend om zijn rustige, groene karakter én zijn centrale ligging. Op steenworp afstand vind je het prachtige Landgoed Clingendael, Park Oostduin-Arendsdorp, en de gezellige Van Hoytemastraat met winkels, terrassen en restaurants. De straat heeft een heerlijk rustig karakter.
Op fietsafstand ben je op het strand van Scheveningen of in het bruisende centrum van Den Haag. Ook uitvalswegen richting Amsterdam, Rotterdam en Utrecht zijn snel bereikbaar.
Wat je graag wilt weten over Paul Gabrielstraat 31:
– woonoppervlakte 117 m² volgens de branchebrede meetinstructie (afgeleid van de NEN 2580 methode);
– energielabel B;
– bouwjaar 1930;
– elektra 8 groepen en 4 aardlekschakelaars;
– CV-installatie met warmwatervoorziening (Nefit, bouwjaar 2015);
– grotendeels houten kozijnen met HR++ glas; één kozijn met enkel glas;
– collectieve opstalverzekering zal geregeld worden met de bovenburen;
– 1/2 aandeel in de VvE, maandelijkse bijdrage is vastgesteld op € 135,- per maand aan de hand van de MJOP;
– bouwtechnisch rapport aanwezig;
– rijksbeschermd stadsgezicht Benoordenhout;
– eigen grond;
– kijk ook naar onze omgevingsfilm;
– verkoopvoorwaarden zijn van toepassing;
– de op te maken koopovereenkomst zal conform het NVM-model zijn;
– in de koopakte zullen in verband met het bouwjaar de ouderdoms- en materialenclausule worden opgenomen;
Indeling:
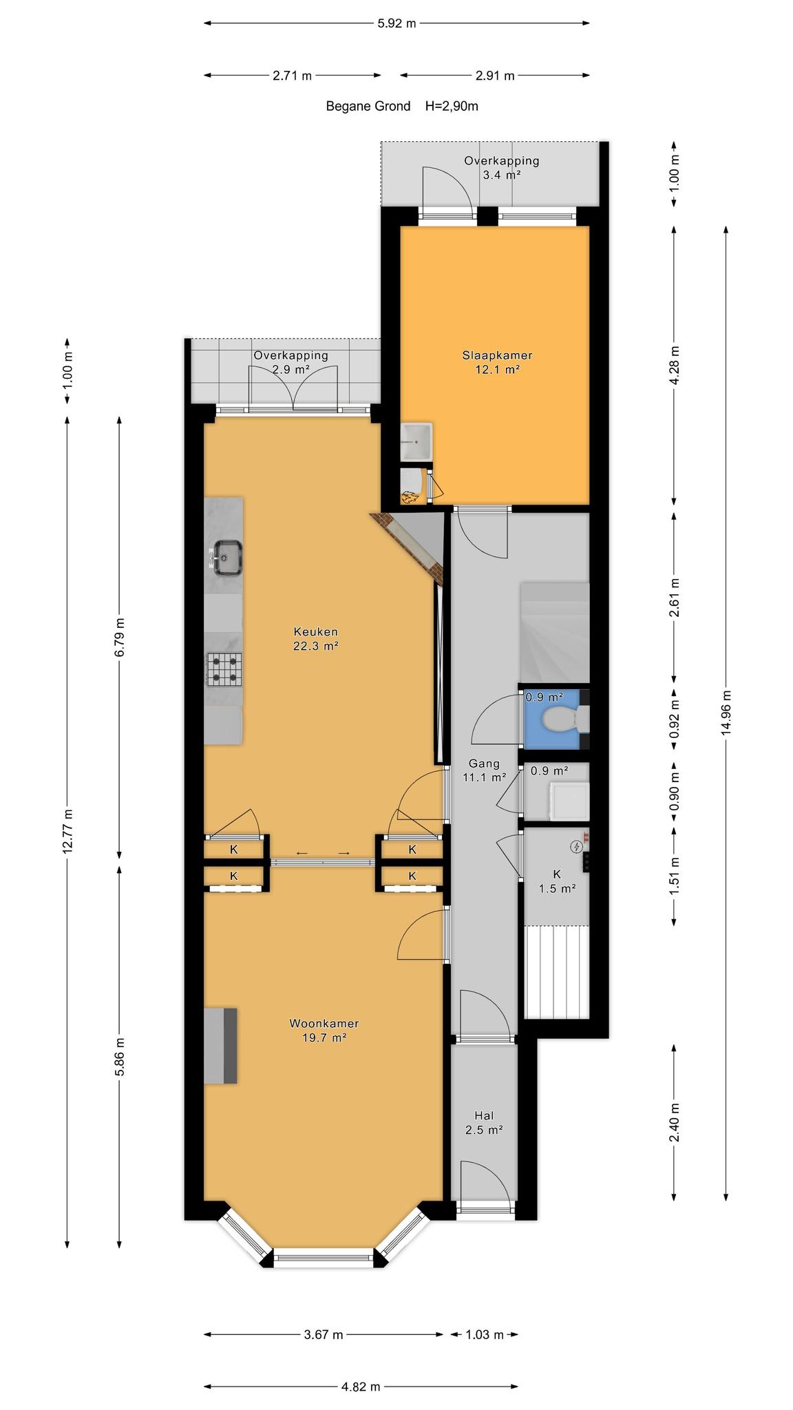
Bij binnenkomst tref je een tochtportaal met een authentieke vloer en glas-in-loodaccenten. De gang is voorzien van een trapkast met de meterkast en een vaste kast met aansluitingen voor wasmachine en droger. Daarnaast vind je hier een gemoderniseerd toilet met granieten vloer en ontluchting. Onder de trap is er ruimte voor bijvoorbeeld het stallen van een fiets of kinderwagen.
De ruime woon-/eetkamer met een en-suite indeling beschikt over originele schuifdeuren met glas-in-lood en biedt veel bergruimte in de vaste kasten. De houten vloerdelen en grote raampartijen zorgen voor een warme en lichte uitstraling. Aan de achterzijde bevinden zich openslaande deuren naar de zonnige achtertuin, eveneens voorzien van glas-in-looddetails.
De open keuken is compleet uitgerust met een vierpits kookplaat, afzuigkap, oven-magnetroncombinatie, vaatwasser, koelkast en een aparte vriezer.
Aan de achterzijde van de woning bevindt zich nog een extra kamer, ideaal als werk- of slaapkamer. Deze ruimte is voorzien van houten vloerdelen, een wastafelmeubel, een vaste kast met de CV-opstelling en biedt eveneens toegang tot de achtertuin.
De fraai aangelegde achtertuin ligt op het zuidoosten en is deels betegeld, omringd door groen en voorzien van een royale houten berging met veel opslagruimte.
Trap naar de 1e etage:
Via de witgelakte houten trap bereik je deze verdieping. Hier bevindt zich een lichte overloop met toegang tot een modern vrijhangend toilet welke ook voorzien van een wastafelmeubel. De ruime slaapkamer aan de achterzijde beschikt over originele paneeldeuren en openslaande deuren naar het achtergelegen balkon, met uitzicht op de groene tuin.
Trap naar de 2e etage:
Op deze etage valt meteen de natuurlijke lichtinval op dankzij de twee karakteristieke ronde daklichten. De overloop geeft toegang tot een derde slaapkamer en een badkamer met bad/douchecombinatie en wastafel. Ook vanaf deze verdieping is er toegang tot een balkon aan de achterzijde.
Interesse in deze woning? Schakel direct uw eigen NVM-aankoopmakelaar in. Uw NVM-aankoopmakelaar komt op voor uw belang en bespaart u tijd, geld en zorgen.
Adressen van collega NVM-aankoopmakelaars in Haaglanden vindt u op Funda.
Kadastrale omschrijving:
Gemeente ‘s-Gravenhage, sectie X, nummer 5300 A-1
Oplevering: in overleg
Step inside this charming 1930s home, full of character and authentic details.
From stained-glass windows and original wooden floors to classic en-suite doors – this property exudes warmth and personality. With three bedrooms, a bright and spacious living area, and a sunny garden, it offers generous and comfortable living space.
Lovingly maintained, the home perfectly blends classic charm with modern-day comfort. Original features have been beautifully preserved, creating a true feeling of home.
An ideal residence for those who seek a stylish home with space, light, and atmosphere.
Come and see for yourself – this property is well worth a visit!
Excellent location with international appeal
Benoordenhout is known for its peaceful, green surroundings and central location. Just around the corner you’ll find the beautiful Clingendael Estate, Park Oostduin-Arendsdorp, and the popular Van Hoytemastraat with its shops, terraces, and restaurants. Paul Gabrielstraat itself is wonderfully quiet and residential.
Both the beach at Scheveningen and The Hague’s vibrant city centre are just a short bike ride away. Major motorways to Amsterdam, Rotterdam and Utrecht are quickly accessible.
Key features of Paul Gabrielstraat 31:
– Living area approx. 117 m² (measured according to industry-wide NEN 2580 standards)
– Energy label B
– Year of construction: 1930
– Modern electrical system with 8 circuits and 4 residual-current devices
– Central heating system with hot water supply (Nefit, 2015)
– Mostly wooden window frames with HR++ glazing; one window has single glazing
– Joint building insurance to be arranged with the upstairs neighbors
– 1/2 share in the Homeowners Association (VvE), monthly contribution is set at €135 per month based on the long-term maintenance plan (MJOP)-Technical inspection report available
– Located in a nationally protected cityscape: Benoordenhout
– Freehold property (no ground lease)
– Be sure to check out our area video
– Sale is subject to standard terms and conditions
– The purchase agreement will be drawn up according to the NVM model
– Due to the age of the property, the standard age and materials clauses will be included in the agreement
Layout:
Upon entering, you’re welcomed by an entrance hall featuring an authentic floor and stained-glass accents. The hallway includes a stair cupboard with the meter unit and a built-in storage closet with connections for a washing machine and dryer. There’s also a modernised guest toilet with granite flooring and ventilation. Under the stairs is a handy nook, ideal for storing a bicycle or stroller.
The spacious living and dining room features a traditional en-suite layout with original stained-glass sliding doors and built-in cabinets. Wooden flooring and large windows enhance the warm and bright ambiance. At the rear, French doors lead to the sunny southeast-facing garden, also featuring stained-glass detailing.
The open kitchen is fully equipped with a four-burner hob, extractor hood, oven/microwave combination, dishwasher, fridge, and separate freezer.
At the rear of the property, you’ll find an additional room – perfect as a study or guest bedroom – with wooden flooring, a washbasin unit, built-in cupboard housing the boiler, and direct access to the garden.
The beautifully landscaped garden is southeast-facing, partially paved and surrounded by greenery. A large wooden shed offers ample storage space.
Staircase to first Floor
A white-painted wooden staircase leads to a bright landing. Here you’ll find a modern toilet with a washbasin. The generous rear bedroom features original panelled doors and French doors opening onto the rear-facing balcony overlooking the green garden.
Staircase to second Floor
This level is bathed in natural light thanks to two distinctive round skylights. The landing leads to a third bedroom and a bathroom with bathtub/shower combination and washbasin. This floor also gives access to a second rear-facing balcony.
Interested in this home?
Be sure to contact your own NVM purchasing agent. They act in your best interest and can save you time, money, and worries.
For a list of fellow NVM purchasing agents in the Haaglanden region, visit Funda.
Land Registry Details:
Municipality of The Hague, section X, number 5300 A-1
Transfer of ownership: in consultation.
Deel deze woning
Afbeeldingen en video
Kenmerken
- Status Verkocht
- Vraagprijs € 700.000, - k.k.
- Soort woonhuis Appartement
- Woonoppervlakte 117 m2
- Totaal aantal kamers 5
- Aantal slaapkamers 3
- Aantal badkamers 1
- Badkamervoorzieningen Ligbad, wastafel
- Inhoud 457 m3
- Oppervlakte gebouwgebonden buitenruimte 12 m2
- Perceel 5.300 m2
- Bouwvorm Bestaande bouw
- Dak type Samengesteld dak
- Woonlagen 3
- Appartement soort Beneden plus bovenwoning
- Appartement woonlaag 1
- Appartement aantal woonlagen 3
- Eigendoms soort Volle eigendom
- Huidige bestemming Woonruimte
- Huidig gebruik Woonruimte
- Bijzonderheden Beschermd stads of dorpsgezicht
- Bouwjaar 1930
- Energielabel B
- Ligging Aan rustige weg, in woonwijk
- Kwaliteit woning Goed
- Aangeboden sinds 04-06-2025
- Aanvaarding In overleg
- Tuin locatie Zuidoost
- Tuin oppervlakte 55 m2
- Tuin type Achtertuin
- Tuin type Achtertuin
- Kwaliteit tuin Verzorgd
- Shed / storage type Vrijstaand hout
- Surface storage space 9 m2
- Isolatievormen Dubbel glas
- Combiketel Ja
- Ketel bouwjaar 2015
- Ketel brandstof Gas
- Ketel eigendom Eigendom
- Heating types Cv ketel
- Warmwater soorten Cv ketel
- Facilities Dakraam
- Garage soort Geen garage
- Parkeer faciliteiten Openbaar parkeren, betaald parkeren
- VVE periodic contribution Ja
Plattegronden
In de buurt
Filter resultaten
Bezichtiging plannen
Vul het formulier in om een bezichtiging te plannen.
"*" geeft vereiste velden aan
