Beschikbaar
2512 gd 's-gravenhage

Prinsegracht 122 A

€ 1.050.000,- k.k.
  • 238 m²
  • 4
Over deze woning

“Het lijkt het kleinste huis in de straat, maar met 238m2 is het één van de grootste huizen in de straat”. Door de verbouwing onder architectuur en het in acht nemen van het beschermd stadsgezicht is nauwelijks te zien dat het twee panden waren en dat er een verdieping bovenop is gekomen. Hierdoor is de ruimte binnen enorm.

Ontdek deze buitengewone stadswoning! Achter deze authentieke gevel gaat een ware woonparel schuil: energiezuinig (energielabel B), verrassend ruim en tot in de puntjes gerenoveerd onder architectuur. Historische charme ontmoet modern comfort, met behoud van authentieke details zoals fraaie balken en een karakteristieke voorgevel. Twee panden zijn samengevoegd tot één royale woning met ongekende mogelijkheden.

De begane grond kan zelfs dienst doen als apart appartement of werkruimte! Daarnaast geniet je van een zonnige tuin, twee prachtige dakterrassen én een inpandige garage—uniek in de stad. Laat je verrassen door deze unieke combinatie van…

“Het lijkt het kleinste huis in de straat, maar met 238m2 is het één van de grootste huizen in de straat”. Door de verbouwing onder architectuur en het in acht nemen van het beschermd stadsgezicht is nauwelijks te zien dat het twee panden waren en dat er een verdieping bovenop is gekomen. Hierdoor is de ruimte binnen enorm.

Ontdek deze buitengewone stadswoning! Achter deze authentieke gevel gaat een ware woonparel schuil: energiezuinig (energielabel B), verrassend ruim en tot in de puntjes gerenoveerd onder architectuur. Historische charme ontmoet modern comfort, met behoud van authentieke details zoals fraaie balken en een karakteristieke voorgevel. Twee panden zijn samengevoegd tot één royale woning met ongekende mogelijkheden.

De begane grond kan zelfs dienst doen als apart appartement of werkruimte! Daarnaast geniet je van een zonnige tuin, twee prachtige dakterrassen én een inpandige garage—uniek in de stad. Laat je verrassen door deze unieke combinatie van ruimte, stijl en functionaliteit!

ENGLISH? SEE BELOW.

Locatie:
Wonen in het hart van bruisend Den Haag!
– Deze unieke woning ligt midden in het levendige centrum, op loopafstand van gezellige winkels, hippe restaurants, sfeervolle barretjes, boeiende musea en uitstekende openbaar vervoermogelijkheden.
– Fiets in slechts 15 minuten naar het strand van Scheveningen voor een heerlijke dag aan zee!
– Dankzij de centrale ligging zijn uitvalswegen snel en gemakkelijk bereikbaar.

Wat je graag wil weten over de Prinsegracht 122
– Woonoppervlakte 238 m² volgens de branchebrede meetinstructie (afgeleid van de NEN 2580 methode)
– Energielabel B
– Bouwjaar 1747
– Eigen grond
– Rijks beschermd stadsgezicht (centrum)
– Zonneboilers (900 liter)
– Zonnepanelen (7x320WP) en zonnecollectoren (4×30 heat-pipes)
– CV-ketel (Itho Kli-Max 2 HR36 uit 2011)
– Voorbereid op warmtepomp
– Nieuwe groepenkast met o.a. extra groep voor zonnepanelen en twee 3-fase krachtstroomgroepen
– Goed geïsoleerd (vloer, muren, ramen met glas-in-lood en dak)
– Geïsoleerd tuinhuis
– Sauna met krachtstroomkachel
– Alarminstallatie aanwezig
– Waterontharder
– EvoHome cv-zoneregeling (12 zones)
– Warme en koele lucht circulatiesystemen
– Warm tapwater circulatiesysteem met volcontinue warmwater bij alle (19) tappunten
– De 1e meter voor de voorgevel (“stoepje”) is eigen grond en kan weer geheel of gedeelte worden afgesloten zoals dat ook bij de buren het geval is.
– Balkenlaag van 20cm hoog waardoor plafonds 20cm hoger zijn dan in het meetrapport staat vermeld
– Kijk ook naar onze omgevingsfilm
– Verkoopvoorwaarden zijn van toepassing
– De op te maken koopovereenkomst zal conform het NVM-model zijn
– In de koopakte zullen in verband met het bouwjaar de ouderdoms- en materialenclausule worden opgenomen

Indeling:
Bij binnenkomst kom je in de hal met een antieke tegelvloer.

Garage:
Vanuit de hal heb je ook toegang tot de inpandige garage met meterkast en waterontharder.

Appartement/praktijkruimte/atelier/kantoor:
Op de begane grond is een zelfstandige, volledig gemeubileerde appartement. Ideaal voor werken aan huis, gasten, een inwonend kind, ouders of au pair. De gang geeft toegang tot alle vertrekken: een toilet met fontein, een badkamer met douche, wastafel en handdoekradiator, en een berging die nu in gebruik is als wijnkamer/kelder. Aan de achterzijde bevinden zich een inpandige slaapkamer, een woonkamer met vaste kast/wasruimte en een keuken met diverse inbouwapparatuur, waaronder een 5-pits gasfornuis, vaatwasser, vriezer en koelkast.

Tuin:
De schuifpui geeft toegang tot de veranda en de ommuurde zonnig en beschutte stadstuin op het zuidoosten. Achter in de tuin staat een volledig geïsoleerd tuinhuis en er is een inpandige berging bereikbaar vanuit de tuin.

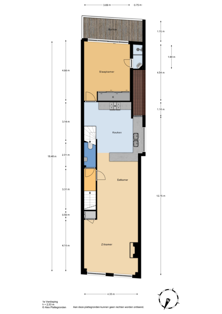
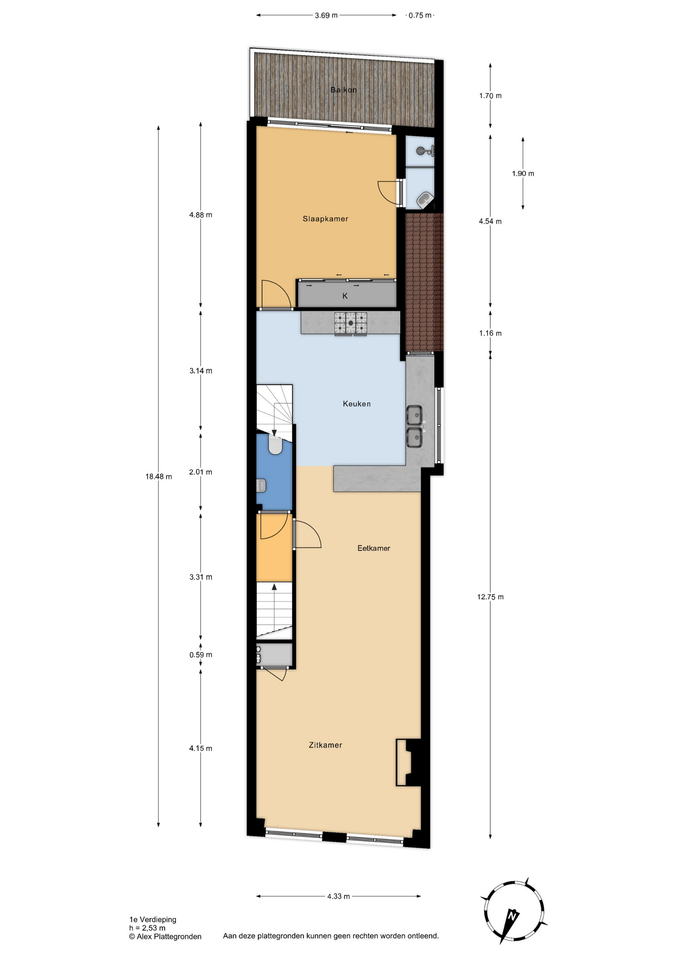
Trap naar de 1e etage:
Op de overloop is een 2e ruime toilet met wastafel. De ruime woon-/eetkamer met Barbas-houtkachel heeft een moderne open keuken met luxe inbouwapparatuur, zoals een magnetron, dubbele spoelbak, vaatwasser en een 90 cm 6-pits gasfornuis met oven en wokbrander (Smeg). Vanuit de woonkamer heb je uitzicht op de Lage Nieuwstraat, met links het historische “Hofje van Nieuwkoop” en rechts de “Zoutmanpanden”. Aan de achterzijde bevindt zich een grote slaapkamer/studeerkamer met vaste kastenwand en een moderne en-suite badkamer met douche, wastafel en handdoekradiator. Tevens heb je hier toegang tot het zonnige achterbalkon (ZO).

Trap naar de 2e etage:
Vanuit de overloop heb je toegang tot de luxe badkamer/wellnessruimte, voorzien van een jacuzzi met lucht- en waterjets, sauna, inloopdouche, handdoekradiator en dubbele wastafel. Vanuit hier heb je ook toegang tot het ruime dakterras met buitenkeuken, voorzien van een 2-pits gasfornuis, spoelbak en koelkast. Het zonnige terras op het zuidoosten is door zijn rustige ligging de perfecte plek om te ontspannen en te genieten van lange zomeravonden. Verder is er op deze verdieping een toilet met fontein. Aan de voorzijde bevindt zich de ruime slaapkamer met walk-in-closet.

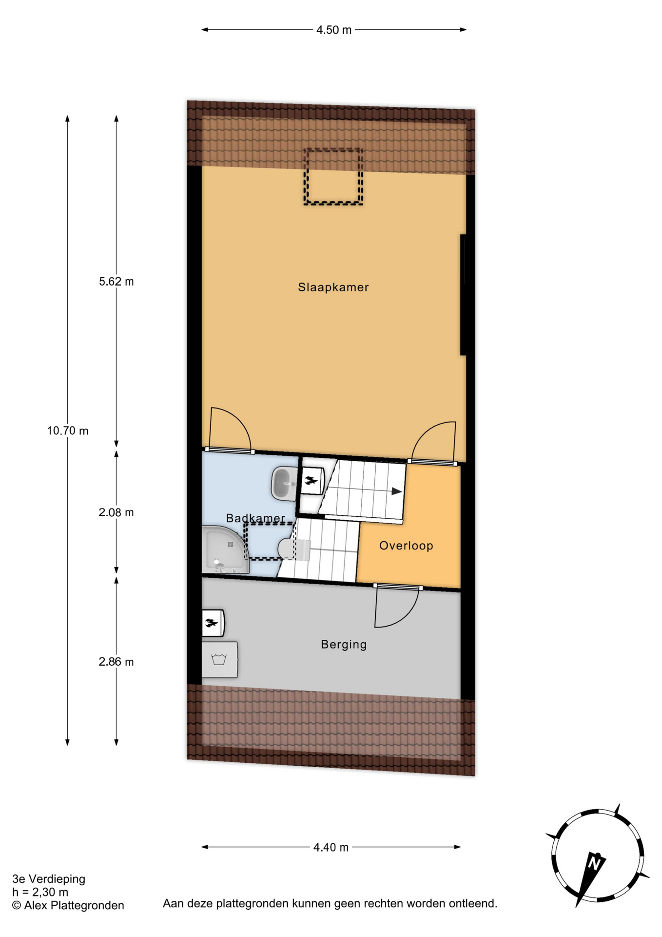
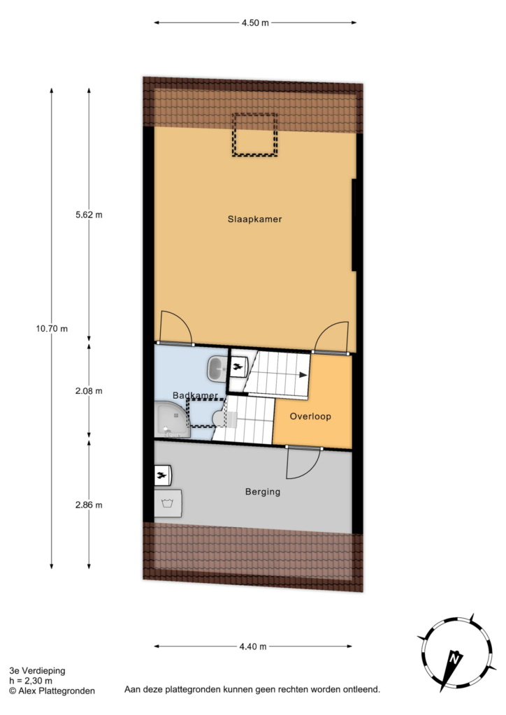
Trap naar de 3e etage:
Overloop, royale slaapkamer met Velux-raam en een 4e badkamer, uitgerust met toilet, wastafel, douche en handdoekradiator, en seprate technische ruimte en wasruimte. Vanaf de overloop op deze verdieping leidt een vaste trap naar het dakraam met toegang tot het dak en de zonnepanelen.
Moderne voorzieningen zoals zonnepanelen, zonneboilers, een geavanceerd verwarmingssysteem met permanent warmwatercircuit en een domoticasysteem zorgen voor een energiezuinig en comfortabel leefklimaat. De mate van isolatie van het huis en het feit dat de twee zonneboilers beide dubbele warmtewisselaars hebben, maken het mogelijk om in de toekomst een full-electric warmtepomp te installeren zonder al te veel bijkomende kosten. Als je hiervoor kiest, is dit meteen een kans om een A-label te krijgen!

Dit zeggen de verkopers:
“Jarenlang hebben wij hier genoten met kinderen en kleinkinderen. Midden in het bruisende centrum van Den Haag vonden we onze eigen oase van rust aan de Prinsegracht. Van zomerse BBQ’s in de beschutte tuin of op het zonnige dakterras tot sfeervolle winteravonden bij de houtkachel!

Interesse in deze woning? Schakel direct uw eigen NVM-aankoopmakelaar in. Uw NVM-aankoopmakelaar komt op voor uw belang en bespaart u tijd, geld en zorgen.

Adressen van collega NVM-aankoopmakelaars in Haaglanden vindt u op Funda.

Kadastrale omschrijving:
Gemeente ‘s-Gravenhage, sectie K, nummer 123

Oplevering: In overleg

*****

This is what the sellers say:
“For years, we have cherished this home, creating wonderful memories with our children and grandchildren. Right in the vibrant heart of The Hague, we found our own oasis of peace on the Prinsegracht. From summer BBQs in the sheltered garden or on the sunny rooftop terrace to cozy winter evenings by the wood-burning stove!

“It seems like the smallest house on the street, but it is actually one of the largest. Due to the architectural renovation and the consideration of the protected cityscape, it is hardly noticeable that it used to be two buildings and that an extra floor has been added. As a result, the interior space is enormous.”

Discover this extraordinary city residence! Behind its authentic façade lies a true hidden gem: energy-efficient (energy label B), surprisingly spacious, and meticulously renovated under architectural supervision. Historic charm meets modern comfort, with beautifully preserved original details such as stunning wooden beams and a characteristic front façade. Two buildings have been seamlessly merged into one grand residence, offering endless possibilities.

The ground floor can even serve as a separate apartment or workspace! In addition, you will enjoy a sunny garden, two fantastic rooftop terraces, and a private indoor garage—an absolute rarity in the city. Be amazed by this unique blend of space, style, and functionality!

Location:
Live in the heart of vibrant The Hague!
– This unique property is located in the lively city center, within walking distance of charming shops, trendy restaurants, cozy cafés, fascinating museums, and excellent public transport connections.
– Hop on your bike and reach the beach of Scheveningen in just 15 minutes for a perfect day by the sea!
– Thanks to its central location, major highways are quickly and easily accessible.

What you need to know about Prinsegracht 122:
– Living area: 238 m², measured according to industry-wide measurement standards (derived from NEN 2580)
– Energy label: B
– Year of construction: 1747
– Freehold property
– Nationally protected cityscape (historic center)
– Solar boilers (900 liters)
– Solar panels (7x320WP) and solar collectors (4×30 heat pipes)
– Central heating boiler (Itho Kli-Max 2 HR36, from 2011)
– Prepared for a heat pump
– New electrical panel with additional circuits for solar panels and two three-phase power groups
– Well-insulated (floors, walls, stained-glass windows, and roof)
– Insulated garden house
– Sauna with power stove
– Alarm system installed
– Water softener
– EvoHome zoned heating system (12 zones)
– Warm and cool air circulation systems
– Continuous hot water circulation system with instant warm water at all (19) taps
– The first meter in front of the house (“stoepje”) is private property and can be fully or partially enclosed, similar to the neighboring houses
– 20 cm beam structure, resulting in ceilings 20 cm higher than stated in the measurement report
– Watch our neighborhood video
– Sale conditions apply
– The purchase agreement will be drawn up according to the NVM model
– Due to the property’s age, an age and materials clause will be included in the purchase agreement

Layout:
Upon entering, you step into the hallway with an antique tiled floor.

Garage
The hallway also provides access to the indoor garage, equipped with an electrical panel and water softener.

Apartment/Studio/Office
The ground floor features a self-contained, fully furnished apartment—ideal for working from home, accommodating guests, or housing a child, parent, or au pair. The hallway provides access to all rooms: a toilet with washbasin, a bathroom with a shower, sink, and towel radiator, and a storage room currently used as a wine cellar. At the rear, you’ll find a bedroom, a living room with built-in storage and laundry space, and a kitchen equipped with modern appliances, including a five-burner gas stove, dishwasher, freezer, and refrigerator.

Garden
Sliding doors open onto the veranda and the sunny, enclosed city garden (southeast-facing). At the back of the garden, there is a fully insulated garden house, as well as an additional indoor storage space accessible from the garden.

First Floor
The landing features a spacious second toilet with a washbasin. The generous living/dining room boasts a Barbas wood-burning stove and a modern open kitchen with luxury built-in appliances, including a microwave, double sink, dishwasher, and a 90 cm six-burner gas stove with oven and wok burner (Smeg). From the living room, you can enjoy views over the Lage Nieuwstraat, with the historic “Hofje van Nieuwkoop” to the left and the “Zoutman buildings” to the right. At the rear, there is a large bedroom/study with built-in wardrobes and a modern en-suite bathroom featuring a shower, sink, and towel radiator. This room also has access to the sunny rear balcony (southeast-facing).

Second Floor
The landing leads to a luxurious bathroom/wellness area with a jacuzzi (air and water jets), sauna, walk-in shower, towel radiator, and double sink. From here, you also have access to the spacious rooftop terrace, complete with an outdoor kitchen featuring a two-burner gas stove, sink, and refrigerator. The southeast-facing terrace is perfectly positioned for relaxation and long summer evenings. This floor also includes a toilet with washbasin. At the front, there is a large bedroom with a walk-in closet.

Third Floor
Landing, spacious bedroom with a Velux window, and a fourth bathroom with a toilet, sink, shower, and towel radiator. Additionally, there is a separate technical room and laundry area. A fixed staircase from the landing leads to the roof hatch, providing access to the roof and solar panels.

Modern features such as solar panels, solar boilers, an advanced heating system with a continuous hot water circuit, and a smart home system ensure an energy-efficient and comfortable living environment. The home’s high insulation levels and dual heat exchangers in both solar boilers make it easy to install a full-electric heat pump in the future with minimal additional costs.

Interested in this property? Please contact your NVM estate agent. Your NVM estate agent acts in your interest and saves you time, money and worries.

Addresses of fellow NVM purchasing agents in Haaglanden can be found on Funda.

Cadastral description:
Municipality of The Hague, section K, number 123

Transfer: in consultation

Lees meer Lees minder

Vragen, of even binnenkijken?

Neem contact op

Deel deze woning

Media

Afbeeldingen en video

Specificaties

Kenmerken

  • Status Beschikbaar
  • Vraagprijs € 1.050.000, - k.k.
  • Soort woonhuis Woonhuis
  • Woonoppervlakte 238 m2
  • Totaal aantal kamers 6
  • Aantal slaapkamers 4
  • Aantal badkamers 4
  • Badkamervoorzieningen Ligbad, jacuzzi, wastafel, wastafelmeubel, inloopdouche, sauna, toilet, douche, wastafel, wastafelmeubel, douche, wastafel, douche, wastafel
  • Inhoud 838 m3
  • Oppervlakte gebouwgebonden buitenruimte 44 m2
  • Plot area 141 m2
  • Perceel 123 m2
  • Bouwvorm Bestaande bouw
  • Dak type Samengesteld dak
  • Woonlagen 4
  • Eigendoms soort Volle eigendom
  • Huidige bestemming Woonruimte
  • Huidig gebruik Woonruimte
  • Bijzonderheden Dubbele bewoning mogelijk, beschermd stads of dorpsgezicht
  • Energielabel B
  • Ligging In centrum
  • Kwaliteit woning Goed
  • Aangeboden sinds 03-09-2025
  • Aanvaarding In overleg
  • Tuin locatie Zuidoost
  • Tuin oppervlakte 45 m2
  • Tuin type Achtertuin
  • Tuin oppervlakte 45 m2
  • Tuin type Achtertuin, zonneterras
  • Kwaliteit tuin Verzorgd
  • Shed / storage type Vrijstaand steen
  • Surface storage space 11 m2
  • Isolatievormen Dakisolatie, muurisolatie, vloerisolatie, dubbel glas, hr glas
  • Ketel bouwjaar 2011
  • Ketel brandstof Gas
  • Ketel eigendom Eigendom
  • Heating types Cv ketel, open haard
  • Warmwater soorten Zonneboiler, zonnecollectoren, elektrische boiler eigendom
  • Facilities Mechanische ventilatie, alarminstallatie, tv kabel, zonnecollectoren, rookkanaal, schuifpui, dakraam, sauna, glasvezel kabel, domotica, zonnepanelen, natuurlijke ventilatie
  • Garage soort Inpandig
  • Garage oppervlakte 14 m2
  • Parkeer faciliteiten Openbaar parkeren, betaald parkeren
Media

Plattegronden

Kaart

In de buurt

Filter resultaten

      Bezichtiging plannen

      Vul het formulier in om een bezichtiging te plannen.

      "*" geeft vereiste velden aan

      Consent*
      Alles in huis

      Onze makelaars staan voor je klaar

      Contact opnemen

      Onze site gebruikt cookies

      Om onze website gemakkelijker en persoonlijker te maker, gebruiken we cookies en vergelijkbare technieken. Je kunt altijd zelf kiezen welke soorten cookies je wilt toestaan. Lees hierover meer in onze Privacyverklaring.