
Wonen in Scheveningen betekent elke dag genieten van de zee, het strand en de boulevard. In deze charmante en karakteristieke bovenwoning komt dat strandhuisgevoel helemaal tot leven. Met 4 slaapkamers, een zonnig terras en twee balkons is er volop ruimte voor het hele gezin.
De lichte woon-/eetkamer met open keuken, de moderne badkamer, de fraaie vloeren en de authentieke uitstraling zorgen voor sfeer en stijl.
Kortom: een heerlijke plek om te wonen, met de unieke charme van Scheveningen binnen handbereik!
ENGLISH? SEE BELOW.
Locatie:
De woning bevindt zich in een rustige straat, op loopafstand van het strand, de boulevard, de haven, winkels en horeca (o.a. Gentsestraat en Keizerstraat), het Westbroekpark en diverse openbaarvervoervoorzieningen.
Wat je graag wilt weten over de Willem Kuijperstraat 86:
– woonoppervlakte 106,1 m² volgens de branchebrede meetinstructie (afgeleid van de NEN 2580 methode);
– energielabel D;
– bouwjaar 1898;
–…
Wonen in Scheveningen betekent elke dag genieten van de zee, het strand en de boulevard. In deze charmante en karakteristieke bovenwoning komt dat strandhuisgevoel helemaal tot leven. Met 4 slaapkamers, een zonnig terras en twee balkons is er volop ruimte voor het hele gezin.
De lichte woon-/eetkamer met open keuken, de moderne badkamer, de fraaie vloeren en de authentieke uitstraling zorgen voor sfeer en stijl.
Kortom: een heerlijke plek om te wonen, met de unieke charme van Scheveningen binnen handbereik!
ENGLISH? SEE BELOW.
Locatie:
De woning bevindt zich in een rustige straat, op loopafstand van het strand, de boulevard, de haven, winkels en horeca (o.a. Gentsestraat en Keizerstraat), het Westbroekpark en diverse openbaarvervoervoorzieningen.
Wat je graag wilt weten over de Willem Kuijperstraat 86:
– woonoppervlakte 106,1 m² volgens de branchebrede meetinstructie (afgeleid van de NEN 2580 methode);
– energielabel D;
– bouwjaar 1898;
– elektra 5 groepen en een aardlekschakelaar;
– cv combiketel , merk Intergas jaar 2012;
– kunststof kozijnen aan de voorzijde en 1 achterzijde en rest zijn houten kozijnen aan de met dubbel glas;
– 2/3 aandeel in de VvE, bijdrage is € 180,- per maand;
– Eigen grond;
– 4 slaapkamers;
– bouwtechnisch rapport aanwezig;
– gemeentelijk beschermd stadsgezicht [Scheveningen];
– eigen grond;
– kijk ook naar onze omgevingsfilm;
– verkoopvoorwaarden zijn van toepassing;
– de op te maken koopovereenkomst zal conform het NVM-model zijn;
– in de koopakte zullen in verband met het bouwjaar de ouderdoms- en materialenclausule worden opgenomen.
Indeling:
Bij binnenkomst tref je de meterkast en de trap naar de 1e etage.
Op de 1e etage ligt een fraaie eikenhouten vloer die is doorgelegd in de woonkamer en de overloop. Hier bevindt zich een vaste kast met de wasmachineaansluiting en een ruim toilet met fonteintje. De voorkamer is doorgebroken waardoor er een ruime, lichte woon-/eetkamer is ontstaan.
Aan de achterzijde ligt de open keuken die van alle gemakken is voorzien: een 5-pits gasfornuis, losse koelkast, vaatwasser, dubbele spoelbak en een afzuigkap. Vanuit de keuken zijn er openslaande deuren naar een knus balkonnetje aan de achterzijde.
Via de eetkamer, afgewerkt met tegels op de vloer, is er bovendien toegang tot het royale zonneterras op het noordoosten. Een fijne plek om buiten te genieten!
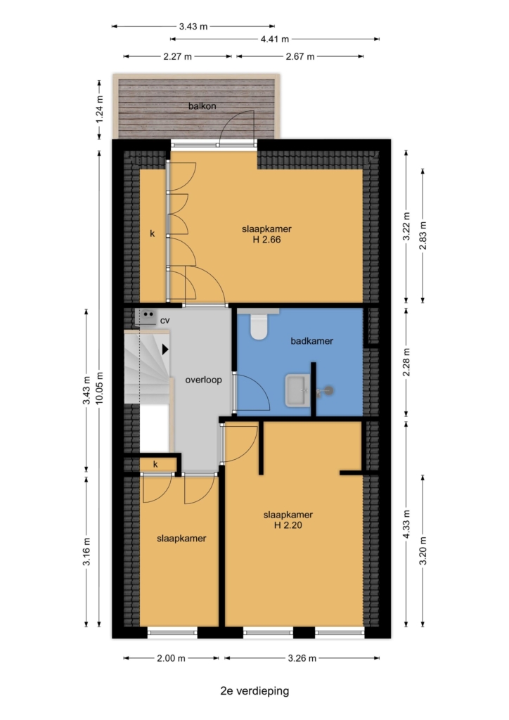
Een binnentrap leidt naar de 2e etage, waar opnieuw houten vloerdelen liggen, ditmaal wit gelakt. Op de overloop bevindt zich de cv-ketel. Aan de voorzijde ligt een ruime slaapkamer met veel lichtinval en een charmant uitzicht de straat in. Daarnaast is er nog een zijkamer met vaste kast.
De moderne badkamer is smaakvol ingericht en voorzien van een tweede toilet, wastafelmeubel, inloopdouche, ligbad, designradiator en een dakraam dat zorgt voor extra daglicht.
Aan de achterzijde bevindt zich nog een royale slaapkamer met inbouwkasten en toegang tot een tweede balkon.
Interesse in deze woning? Schakel direct jouw eigen NVM-aankoopmakelaar in. Een NVM-aankoopmakelaar komt op voor jouw belang en bespaart je tijd, geld en zorgen.
Adressen van collega NVM-aankoopmakelaars in Haaglanden vind je op Funda.
Kadastrale omschrijving:
Gemeente ‘s-Gravenhage, sectie AG, nummer 3607 A-2
Oplevering: in overleg
Living in Scheveningen means enjoying the sea, the beach, and the boulevard – every single day.
This charming and characterful upper-level apartment perfectly captures that coastal lifestyle. With four bedrooms, a sunny terrace, and two balconies, there’s ample space for the entire family.
The bright living and dining area with open-plan kitchen, the modern bathroom, beautiful flooring, and authentic details all contribute to a warm and stylish atmosphere.
In short: a wonderful place to call home, with the unique charm of Scheveningen right at your doorstep.
Location:
The property is located on a quiet street, within walking distance of the beach, the boulevard, the harbour, shops, and a variety of restaurants and cafés (including those on Gentsestraat and Keizerstraat).
You’ll also find the beautiful Westbroekpark and several public transport options just a short stroll away.
What you’d like to know about Willem Kuijperstraat 86:
– living area: 106.1 m² in accordance with industry-wide measurement guidelines (based on the NEN 2580 standard);
– energy label: D;
– year of construction: 1898;
– electrical system: 5 circuits with residual-current device (RCD);
– central heating combi boiler, brand: Intergas, year of installation: 2012;
– plastic window frames at the front and partially at the rear; the remaining frames are wooden, all with double glazing;
– 2/3 share in the homeowners’ association (VvE); monthly contribution: €180;
– freehold property (no leasehold);
– 4 bedrooms;
– structural inspection report available;
– located in a designated municipal conservation area [Scheveningen];
– be sure to watch our area video;
– terms and conditions of sale apply;
– the purchase agreement will be drawn up in accordance with the NVM model;
– due to the age of the property, an age and materials clause will be included in the deed of sale.
Layout:
Upon entering, you’ll find the meter cupboard and stairs leading to the first floor.
The first floor features a beautiful oak floor that continues seamlessly through the living room and hallway. Here, you’ll also find a built-in cupboard with a washing machine connection, as well as a spacious toilet with a small washbasin.
The front rooms have been combined to create a bright and generously sized living and dining area.
At the rear, the open-plan kitchen is fully equipped with all modern conveniences: a 5-burner gas stove, freestanding fridge, dishwasher, double sink, and an extractor hood. French doors open onto a cosy rear-facing balcony — the perfect spot for your morning coffee.
From the dining area, which features a tiled floor, there is direct access to a spacious northeast-facing sun terrace – an ideal place to relax and enjoy the outdoors.
A staircase leads to the second floor, where white-painted wooden floorboards enhance the light and airy feel. On the landing, you’ll find the central heating boiler.
At the front, a large and bright bedroom offers charming views of the quiet street below. Adjacent to this is a smaller side room with a built-in wardrobe.
The stylish, modern bathroom is tastefully finished and includes a second toilet, a vanity unit, walk-in shower, bathtub, designer radiator, and a skylight that floods the space with natural light.
To the rear, a second spacious bedroom features built-in wardrobes and direct access to another balcony.
Interested in this property?
Immediately engage your own NVM purchasing agent. Your NVM agent will represent your interests and save you time, money, and worry.
Addresses of fellow NVM purchasing agents in the Haaglanden region can be found on Funda.
Cadastral description:
Municipality The Hague, section AG, number 3607 A-2
Delivery date: in consultation
Deel deze woning
Afbeeldingen en video
Kenmerken
- Status Beschikbaar
- Vraagprijs € 595.000, - k.k.
- Soort woonhuis Appartement
- Woonoppervlakte 106 m2
- Totaal aantal kamers 6
- Aantal slaapkamers 5
- Aantal badkamers 1
- Badkamervoorzieningen Ligbad, toilet, douche, wastafelmeubel
- Inhoud 354 m3
- Oppervlakte gebouwgebonden buitenruimte 8 m2
- Perceel 3.607 m2
- Bouwvorm Bestaande bouw
- Dak type Plat dak
- Woonlagen 2
- Appartement soort Bovenwoning
- Appartement woonlaag 2
- Appartement aantal woonlagen 2
- Eigendoms soort Volle eigendom
- Huidige bestemming Woonruimte
- Huidig gebruik Woonruimte
- Bijzonderheden Beschermd stads of dorpsgezicht
- Bouwjaar 1898
- Energielabel D
- Ligging Aan rustige weg, in woonwijk
- Kwaliteit woning Goed
- Aangeboden sinds 17-10-2025
- Aanvaarding In overleg
- Tuin locatie Noordoost
- Tuin oppervlakte 11 m2
- Tuin type Zonneterras
- Tuin oppervlakte 11 m2
- Tuin type Zonneterras
- Kwaliteit tuin Verzorgd
- Isolatievormen Dubbel glas
- Combiketel Ja
- Ketel bouwjaar 2012
- Ketel brandstof Gas
- Ketel eigendom Eigendom
- Heating types Cv ketel
- Warmwater soorten Cv ketel
- Facilities Dakraam
- Garage soort Geen garage
- Parkeer faciliteiten Betaald parkeren
- VVE periodic contribution Ja
Plattegronden
In de buurt
Filter resultaten
Bezichtiging plannen
Vul het formulier in om een bezichtiging te plannen.
"*" geeft vereiste velden aan
