Verkocht onder voorbehoud
2582 cl 's-gravenhage

Cornelis de Wittlaan 36

€ 529.000,- k.k.
  • 96 m²
  • 2
About this house

Welcome to your new home: a beautiful 95 m2 apartment on the 4th floor, with private parking and private storage in a lovely location in the statenkwartier!

imagine waking up every day in a stylish apartment at a central location. the perfect balance between comfort and luxury awaits you in this attractive living space, featuring a spacious living room with a front-facing balcony on the southwest, a modern open kitchen, two bedrooms, and a contemporary bathroom.

make your dreams come true and experience the ultimate in living pleasure in this recently available apartment in the ‘de staten i’ complex from 2000.

location
you live just a stone's throw from the harbour, the beach and the dunes, where you can enjoy the sun, sea and relaxation. opposite the house you will find the inspiring art museum and photography museum and, as the icing on the cake, you have the…

Welcome to your new home: a beautiful 95 m2 apartment on the 4th floor, with private parking and private storage in a lovely location in the statenkwartier!

imagine waking up every day in a stylish apartment at a central location. the perfect balance between comfort and luxury awaits you in this attractive living space, featuring a spacious living room with a front-facing balcony on the southwest, a modern open kitchen, two bedrooms, and a contemporary bathroom.

make your dreams come true and experience the ultimate in living pleasure in this recently available apartment in the ‘de staten i’ complex from 2000.

location
you live just a stone's throw from the harbour, the beach and the dunes, where you can enjoy the sun, sea and relaxation. opposite the house you will find the inspiring art museum and photography museum and, as the icing on the cake, you have the ‘fred’ in your back garden, with its charming shops and restaurants. international zone with various international organisations and schools.

key details about cornelis de wittlaan 36
- living area: 95 m² (measured according to the industry-wide measurement instruction, based on nen 2580)
- energy label: a
- private parking space and storage unit
- kitchen 2019, bathroom and toilet renovated in 2023
- beautiful laminate flooring throughout the apartment
- high-efficiency central heating boiler (intergas, 2016)
- wooden and aluminium window frames with double glazing
- video intercom system
- active homeowners’ association (vve), monthly contribution: €186.16
- vve contribution for storage unit: €13.91 per month, parking space: €24.55 per month
- as of january 1, 2026, the homeowners association contribution will be increased by 15%
- on-site caretaker
- municipal protected cityscape status
- year of construction: 2000
- freehold property (no leasehold)
- watch our area video for more insights
- section5 sales conditions apply
- the purchase agreement will follow the nvm model
- due to the year of construction, an age clause will be included in the contract
- non-occupancy clause applies
- project notary: vg notarissen in amsterdam

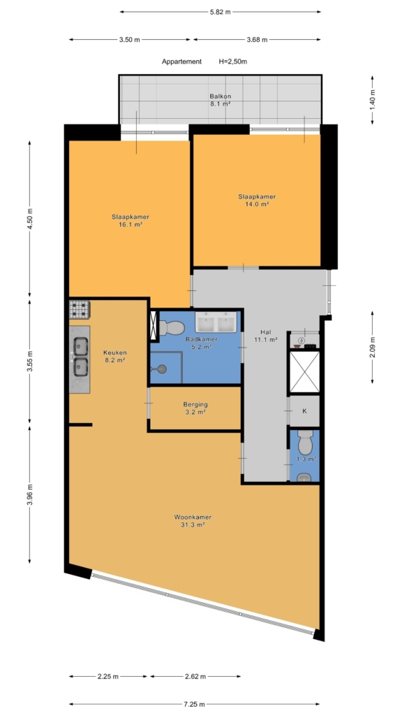
layout
through the entrance with mailboxes, intercom panel, and secured entry, you arrive at the central hall of the complex. elevator/stairs to the 4th floor.

upon entering the apartment, the hallway features a laminate floor and houses the meter cupboard. the modern bathroom is equipped with a double sink, wall-mounted toilet, designer radiator, separate shower, and bathtub.
in the hallway, there is also a second toilet with a wall-mounted closet and a small sink, as well as a built-in closet containing the central heating boiler and mechanical ventilation system.

at the rear of the complex, you’ll find the l-shaped living and dining room with an unobstructed view of the iconic kunstmuseum building. the open kitchen is modernly equipped with a four-burner induction cooktop, extractor hood, sink, dishwasher, refrigerator with freezer compartment, and an oven. additionally, there is a separate indoor storage room with connections for a washing machine and dryer.

at the front of the complex, there are two bedrooms. both provide access to the sunny front-facing balcony, oriented to the southwest.

a private parking space and storage unit are located in the secure underground parking garage.

interested in this property? please contact your nvm estate agent. your nvm estate agent acts in your interest and saves you time, money and worries.

addresses of fellow nvm purchasing agents in haaglanden can be found on funda.

cadastral description:
municipality of the hague, section n, number 8888 a-107 (apartement)
municipality of the hague, section n, number 8888 a-234 (storage unit)
municipality of the hague, section n, number 8888 a-279 (parking)

transfer: in consultation

Read more Read less

Questions, or take a look inside?

Share this house

Media

Images & video

Specificaties

Features

  • Status Verkocht onder voorbehoud
  • Asking price € 529.000, - k.k.
  • Type of house Appartement
  • Livings space 96 m2
  • Total number of rooms 3
  • Number of bedrooms 2
  • Number of bathrooms 1
  • Bathroom facilities Toilet, douche, dubbele wastafel
  • Volume 330 m3
  • Surface area of building-related outdoor space 8 m2
  • Plot 26.664 m2
  • Construction type Bestaande bouw
  • Roof type Plat dak
  • Floors 1
  • Appartment type Portiekflat
  • Appartment level 4
  • Apartment floor number 1
  • Property type Volle eigendom, volle eigendom, volle eigendom
  • Current destination Woonruimte
  • Current use Woonruimte
  • Special features Beschermd stads of dorpsgezicht
  • Construction year 2000
  • Energy label A
  • Situation In woonwijk, vrij uitzicht
  • Quality home Goed
  • Offered since 04-11-2025
  • Acceptance In overleg
  • Garden type Geen tuin
  • Shed / storage type Inpandig
  • Surface storage space 4 m2
  • Insulation type Volledig geisoleerd
  • Central heating boiler Yes
  • Boiler construction year 2016
  • Boiler fuel type Gas
  • Boiler property Eigendom
  • Heating types Cv ketel
  • Warm water type Cv ketel
  • Facilities Mechanische ventilatie
  • Garage type Parkeerkelder, parkeerplaats
  • Garage surface 11 m2
  • Parking facilities Parkeergarage
  • VVE periodic contribution Yes
Media

Floor plan

Map

In the neighborhood

Filter results

      Schedule a viewing

      Fill in the form to schedule a viewing.

      "*" indicates required fields

      Consent*
      Everything in house

      Our brokers are ready for you

      Contact us

      Our site uses cookies

      To make our website easier and more personal, we use cookies and similar techniques. You can always choose which types of cookies you want to allow. Read more about this in our Privacy Policy.