Verkocht onder voorbehoud
2518 xh 's-gravenhage

Barentszstraat 22

€ 975.000,- k.k.
  • 194 m²
  • 6
About this house

Living in the heart of the zeeheldenkwartier!
a characterful three-level upper-floor apartment of 194 m², filled with natural light, featuring three terraces, including a truly unique 26 m² roof terrace directly adjoining the living room, offering the genuine feel of a private garden. the property boasts a spacious living/dining area, a luxurious kitchen and bathroom, and no fewer than six bedrooms. the top floor can be arranged entirely to your own wishes. everything is within easy reach: charming coffee spots, restaurants, shops and the vibrant atmosphere of prins hendrikplein. ideal for those seeking to combine city living with comfort and outdoor space.

location:
barentszstraat is located in the very heart of the zeeheldenkwartier, a lively and distinctive urban neighbourhood with a strong identity of its own. the area is known for its authentic architecture, pleasant streets and strong sense of community. within walking distance you will find a…

Living in the heart of the zeeheldenkwartier!
a characterful three-level upper-floor apartment of 194 m², filled with natural light, featuring three terraces, including a truly unique 26 m² roof terrace directly adjoining the living room, offering the genuine feel of a private garden. the property boasts a spacious living/dining area, a luxurious kitchen and bathroom, and no fewer than six bedrooms. the top floor can be arranged entirely to your own wishes. everything is within easy reach: charming coffee spots, restaurants, shops and the vibrant atmosphere of prins hendrikplein. ideal for those seeking to combine city living with comfort and outdoor space.

location:
barentszstraat is located in the very heart of the zeeheldenkwartier, a lively and distinctive urban neighbourhood with a strong identity of its own. the area is known for its authentic architecture, pleasant streets and strong sense of community. within walking distance you will find a wide variety of specialist shops, supermarkets, coffee bars, restaurants and terraces, particularly around piet heinstraat, prins hendrikstraat and prins hendrikplein.

the zeeheldenkwartier is vibrant all year round: a weekly market takes place every thursday, the square transforms into a winter wonderland during the festive season with the “snow & glow festival”, and the annual zeehelden festival is a well-known highlight. the neighbourhood combines urban convenience with a relaxed yet lively atmosphere and enjoys a central location close to the city centre, public transport and green spaces such as the paleistuin.

what you'd like to know about barentszstraat 22:
- living area of 194 m², measured in accordance with the industry-wide measurement standard (derived from the nen 2580 method);
- three terraces, including a unique 26 m² terrace adjoining the living room;
- energy label c;
- built in 1880;
- heating and hot water via central heating boiler (remeha avanta cw4, 2011);
- mostly upvc window frames with double glazing;
- 2/3 share in the owners’ association (vve), monthly contribution €100;
- recently prepared long-term maintenance plan (mjop) and a separate building inspection report available;
- extensive electrical distribution board (replaced in 2011);
- roof largely insulated;
- attractive parquet flooring on the first floor; laminate flooring on the second and third floors;
- freehold property;
- please also view our neighbourhood video;
- sale conditions apply;
- the deed of sale will be drawn up in accordance with the nvm model;
- given the year of construction, an age clause and materials clause will be included in the deed of sale.

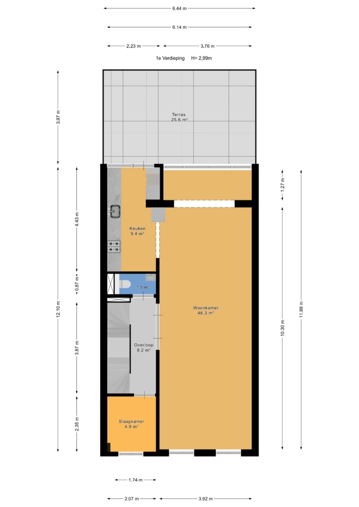
layout:
ground floor
you enter the property through an impressive, wide front door. the spacious hallway immediately stands out with its stylish marble floor tiles. there is space here, if desired, to store bicycles. the hallway also provides access to the meter cupboard and a practical storage room at the rear, where the central heating boiler is located.

first floor
the staircase leads to the landing. behind elegant frosted-glass doors lies a very bright and atmospheric living/dining room with a semi-open luxury kitchen. the kitchen is fully equipped, including a dishwasher, microwave and oven, a large six-burner gas hob and extractor hood. from the kitchen, you step directly onto the unique, spacious and sunny 26 m² roof terrace / roof garden, facing southwest — a wonderful place to enjoy the sun. the landing also provides access to a side room at the front, currently used as a home office. in addition, there is a spacious toilet with washbasin on this floor.

second floor
on the landing, you will find at the rear a very large and bright bedroom (25 m²), complete with walk-in wardrobe and french doors opening onto a generous 11 m² balcony, also facing southwest.
at the front is a second spacious and light bedroom, featuring a beautiful walk-in wardrobe created from the former side room.
the bathroom feels like a private wellness area and is fitted with an open walk-in shower, designer radiator, wall-hung toilet, a comfortable bathtub and a double fixed washbasin.

third floor
the third floor offers a generous bedroom at the rear with access to a cosy balcony. at the front, there is a very large open space, fitted with an additional kitchen and sink. this floor is ideally suited for creating extra bedrooms or a multifunctional living area, entirely according to your own preferences.

interested in this property?
immediately engage your own nvm purchasing agent. your nvm agent will represent your interests and save you time, money, and worry.

addresses of fellow nvm purchasing agents in the haaglanden region can be found on funda.

cadastral description:
municipality the hague, section z, number 6155 a-2

delivery date: in consultation, can be quick

Read more Read less

Questions, or take a look inside?

Share this house

Media

Images & video

Specificaties

Features

  • Status Verkocht onder voorbehoud
  • Asking price € 975.000, - k.k.
  • Type of house Appartement
  • Livings space 194 m2
  • Total number of rooms 8
  • Number of bedrooms 6
  • Number of bathrooms 1
  • Bathroom facilities Ligbad, toilet, dubbele wastafel, inloopdouche
  • Volume 651 m3
  • Surface area of building-related outdoor space 41 m2
  • Plot 6.155 m2
  • Construction type Bestaande bouw
  • Roof type Samengesteld dak
  • Floors 3
  • Appartment type Bovenwoning
  • Appartment level 2
  • Apartment floor number 3
  • Property type Volle eigendom
  • Current destination Woonruimte
  • Current use Woonruimte
  • Special features Beschermd stads of dorpsgezicht
  • Construction year 1880
  • Energy label C
  • Situation Aan rustige weg, in woonwijk
  • Quality home Goed tot uitstekend
  • Offered since 23-01-2026
  • Acceptance In overleg
  • Main garden location Zuidwest
  • Main garden area 26 m2
  • Main garden type Zonneterras
  • Garden plot area 26 m2
  • Garden type Zonneterras
  • Qualtiy garden Verzorgd
  • Insulation type Dakisolatie, dubbel glas
  • Central heating boiler Yes
  • Boiler construction year 2011
  • Boiler fuel type Gas
  • Boiler property Eigendom
  • Heating types Cv ketel
  • Warm water type Cv ketel
  • Facilities Dakraam, glasvezel kabel
  • Garage type Geen garage
  • Parking facilities Parkeervergunningen
  • VVE periodic contribution Yes
Media

Floor plan

Map

In the neighborhood

Filter results

      Schedule a viewing

      Fill in the form to schedule a viewing.

      "*" indicates required fields

      Consent*
      Everything in house

      Our brokers are ready for you

      Contact us

      Our site uses cookies

      To make our website easier and more personal, we use cookies and similar techniques. You can always choose which types of cookies you want to allow. Read more about this in our Privacy Policy.